
Lotti di Terreno Nogarè - Belluno
69.000,00 €
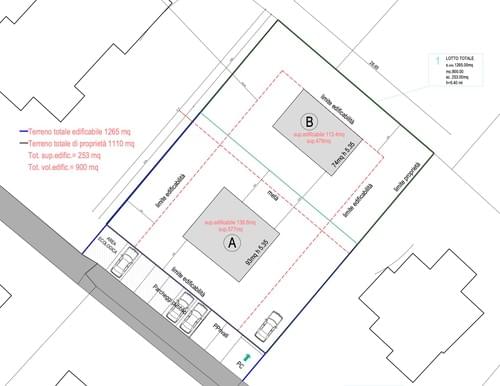
CLICCA PER VEDERE LE IMMAGINI DEI LOTTI, GLI INGOMBRI EDILIZI REALIZZABILI E IL LORO COSTO STIMATO.
Immagina la tua nuova casa su questo terreno: fino a 165 mq con giardino privato, grandi vetrate e spazi luminosi. Ecco quanto costa renderlo realtà.
Al solo scopo di facilitarti la comprensione dei costi per la realizzazione di una costruzione, ti riportiamo qui di seguito un'ipotesi di costi di costruzioni considerando la media attuale dei costi per le nuove realizzazioni a Belluno.
IPOTESI DA 120 MQ DI QUELLO CHE POTRAI REALIZZARE E DEI SUOI COSTI DI REALIZZAZIONE
Villino Indipendente
120 mq circa di spazio utile per villino – 2 o 3 camere
Soluzione moderna di 300 mc (150 mc. lasciati non utilizzati), con grandi vetrate, giardino privato e ampi spazi su due livelli. Zona notte al piano superiore con due o tre camere e bagni. Perfetta per famiglie che cercano comfort e tranquillità nel quartiere più servito di Belluno.
Stima del costo di costruzione finito: € 340.000,00 - 360.000,00
Compresi nel costo di costruzione:
- Fondazioni
- Garage coperto
- Tutte le opere di edilizia fuori terra
- Impianto Idraulico
- Impianto Elettrico
- Serramenti
- Soglie e davanzali
- Pavimenti e Rivestimenti interni
- Sanitari
- Lattoneria
- Allacciamenti alle utilità
Arredo completo da € 750,00 a mq
Esclusi:
- Professionisti, Autorizzazioni e Oneri Urbanistici (€ 30.000)
- Costo del terreno (€ 69.000)
Vai al modulo di contatto: clicca qui
Annuncio su immobiliare.it: https://www.immobiliare.it/annunci/124905271/










